Woonoppervlakte
Circa 53 m²
Inhoud
Circa 173 m³
Bouwjaar
Gebouwd in 1978
Aantal kamers
2 kamers (1 slaapkamers)

Douzapad 27

2722 AX, Zoetermeer (Zuid-Holland)

Dit goed onderhouden appartement maakt deel uit van een uniek en kleinschalig complex dat zich kenmerkt door zijn prettige en rustige ligging. Op korte afstand vindt u de gezellige Dorpsstraat met een divers aanbod aan winkels en horecagelegenheden. Ook sportvoorzieningen zijn volop in de buurt aanwezig. Een groot pluspunt van dit appartement is het zeer royale terras, waar u in alle rust en privacy van het buitenleven kunt genieten.

Voor meer info kijk op Douzapad27.nl

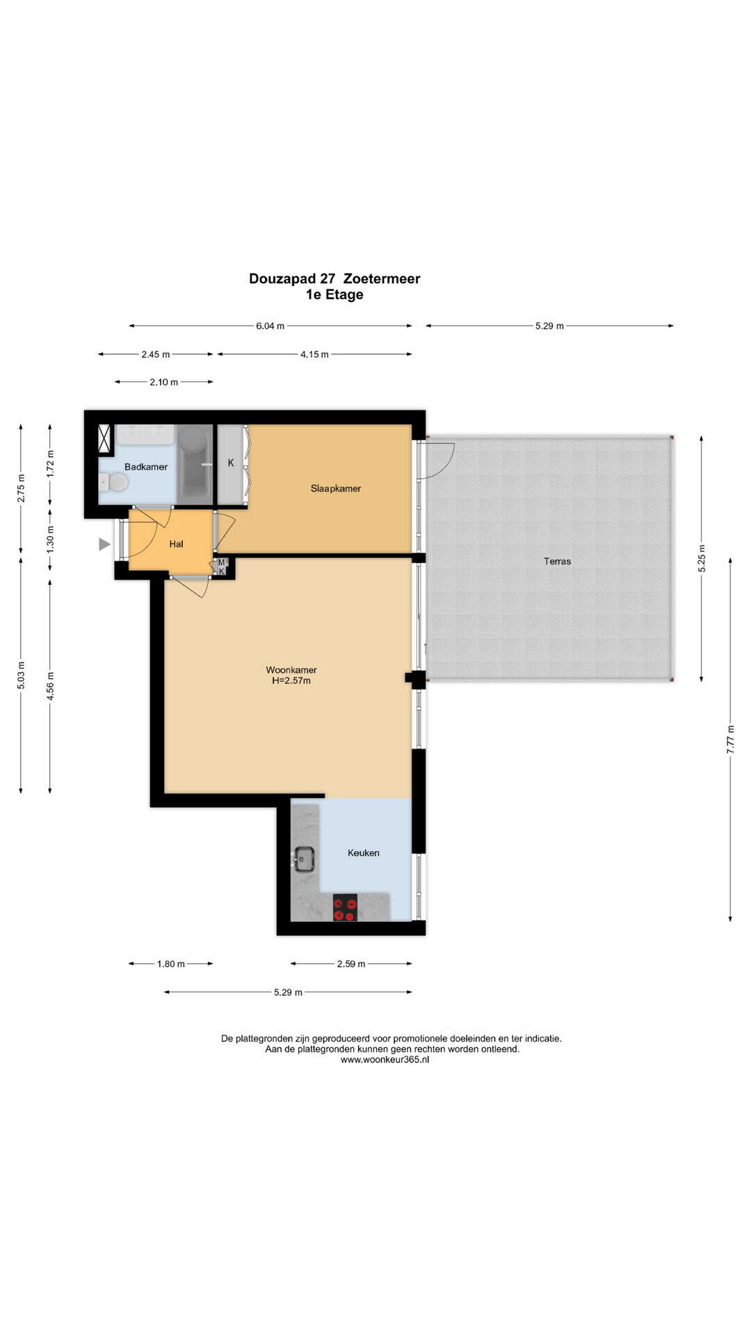
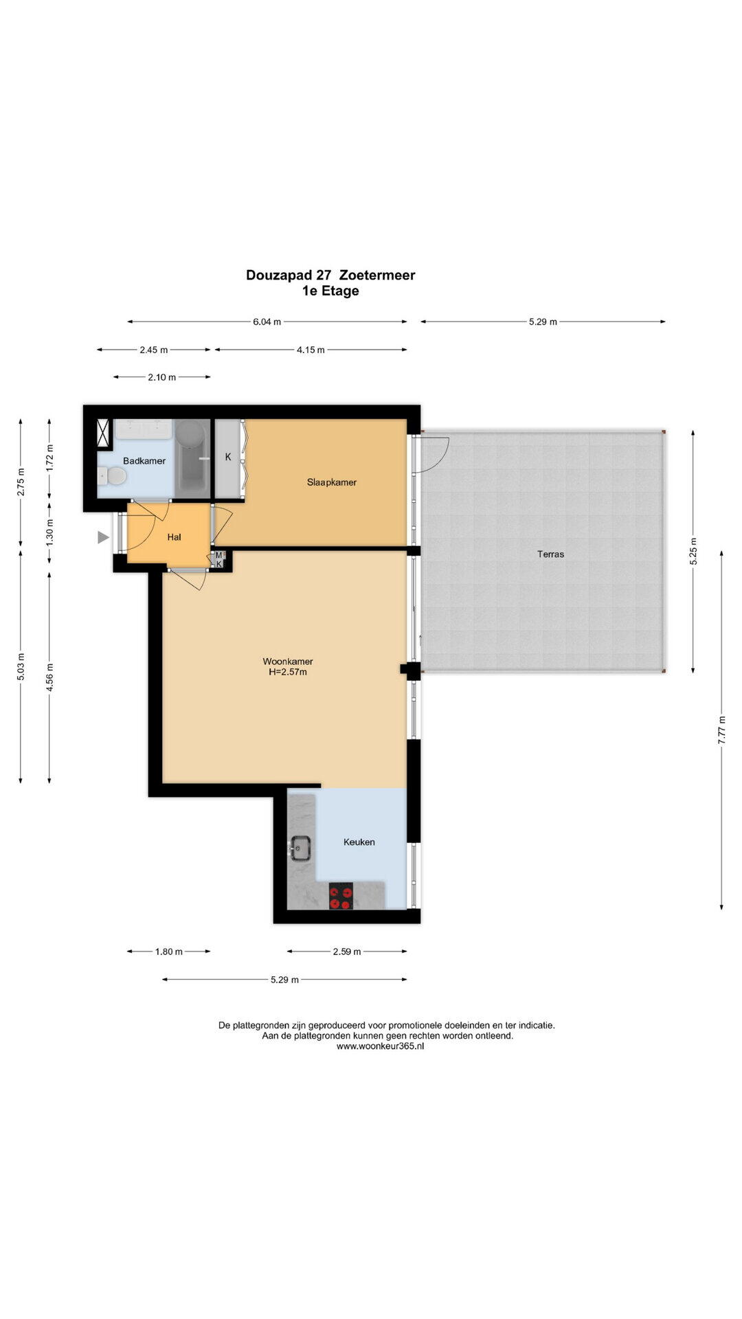
Indeling
Bij binnenkomst tref je de entreehal met het bellentableau en de brievenbussen. Vanuit de ruime hal binnen in het complex zijn de lift, het trappenhuis en de gezamenlijke fietsenberging te bereiken. De privéberging bevind zich ook op de galerij beneden en biedt voldoende ruimte.

1e etage:
Dit 2-kamer appartement op de eerste etage heeft een praktische en prettige indeling. Vanuit de hal zijn de woonkamer, de slaapkamer en de badkamer bereikbaar. De ruime woonkamer heeft een open verbinding met de keuken, die in een hoekopstelling is uitgevoerd en voorzien van inbouwapparatuur zoals een inductiekookplaat, koelkast en oven. De badkamer beschikt over een dubbele wastafel met meubel, een toilet en een ligbad met douchefunctie. Vanuit de woonkamer is het zeer royale en zonnige terras toegankelijk die over een vrij uitzicht beschikt.
Op de 1e verdieping beschikt deze woning ook nog over een opslaghok die tevens gebruikt kan worden als wasmachinehok.

Wetenswaardig:
- Bouwjaar: 1978;
- Woonoppervlak van 53 m2;
- Energielabel C;
- Berging in onderbouw;
- Ruim terras op het zuiden;
- Ruim voldoende openbare parkeergelegenheid;
- Actieve VVE: maandelijkse bijdrage € 174,18
- Voorschot stookkosten € 146.-
- Scholen en winkels zoals supermarkt op 5 minuten loopafstand;
- Randstadrail halte Palenstein op 5 minuten loopafstand;
- Aparte wasruimte op de 1e etage;
- Oplevering in overleg;

Interesse in deze woning? Schakel direct uw eigen NVM-aankoopmakelaar in.
Uw NVM-aankoopmakelaar komt op voor uw belang en bespaart u veel tijd, geld en zorgen.
Adressen van collega NVM-aankoopmakelaars in Zoetermeer vindt u op Funda.nl.

Deze informatie is door ons met de nodige zorgvuldigheid samengesteld. Onzerzijds wordt echter geen enkele aansprakelijkheid aanvaard voor enige onvolledigheid, onjuistheid of anderszins, dan wel de gevolgen daarvan. Alle opgegeven maten en oppervlakten zijn indicatief.

Koopovereenkomst pas rechtsgeldig na ondertekening:
Een mondelinge overeenstemming tussen de particuliere verkoper en de particuliere koper is niet rechtsgeldig. Met andere woorden: er is geen koop. Er is pas sprake van een rechtsgeldige koop als de particuliere verkoper en de particuliere koper de koopovereenkomst hebben ondertekend.
Dit vloeit voort uit artikel 7:2 Burgerlijk Wetboek. Een bevestiging van de mondelinge overeenstemming per e-mail of een toegestuurd concept van de koopovereenkomst wordt overigens niet gezien als een 'ondertekende koopovereenkomst'.

Plattegronden

Overdracht

Vraagprijs
Vraagprijs: € 275.000 k.k.
Status
Verkocht
Aanvaarding
In overleg
Bijdrage VvE
€ 174.18 p/m

Bouw

Object type
Galerijflat, appartement
Soort bouw
Bestaande bouw
Bouwjaar
1978
Soort dak
Plat dak bedekt met bitumineuze dakbedekking

Oppervlakte en inhoud

Woonoppervlakte
53 m²
Inhoud
173 m³
Externe bergruimte
4 m²
Gebouwgeb. buitenruimte
23 m²

Indeling

Aantal kamers
2 kamers (1 slaapkamers)
Aantal badkamers
1 badkamer
Badkamervoorzieningen
Ligbad, toilet, douche, dubbele wastafel
Aantal woonlagen
2 woonlagen
Voorzieningen
Mechanische ventilatie, tv-kabel

Energie

Energielabel
C
Energielabel registratie
28-08-2025
Isolatie
Dakisolatie, muurisolatie, hr glas
Verwarming
Blokverwarming
Warm water
Centrale voorziening

Buitenruimte

Ligging
Aan rustige weg, in woonwijk, vrij uitzicht
Tuin
Zonneterras
ligging tuin
Gelegen op het zuiden

Bergruimte

Schuur / berging
Box
Voorzieningen
Voorzien van elektra

Garage

Soort garage
Geen garage

Parkeergelegenheid

Soort parkeergelegenheid
Openbaar parkeren

VvE checklist

Inschrijving KvK
Ja
Jaarlijkse vergadering
Ja
Periodieke bijdrage
Ja, € 174.18 p/m
Reservefonds aanwezig
Ja
Onderhoudsplan
Ja
Opstalverzekering
Ja

Energieverbruik in Zoetermeer

Energielabel deze woning

Energielabel C

Publicatie energielabel: 28-08-2025

Stroomverbruik per jaar

2210 kWh

(Gemiddelde appartement in Zoetermeer)

Gasverbruik per jaar

750 m³

(Gemiddelde appartement in Zoetermeer)

* Cijfers zijn afkomstig van het CBS en bedoeld als indicatie en kunnen verschillen voor deze woning

Indicatie hypotheeklasten

Eigen inleg:
Spaargeld / overwaarde

Rente:
Laagste 10-jaars rente

Laagste 10-jaars rente

2,98% - Centraal Beheer Groen... - NHG


3,25% - Centraal Beheer Groen... - 80%

Laagste 20-jaars rente

3,29% - Centraal Beheer Groen... - NHG


3,52% - Centraal Beheer Groen... - 80%

Laagste 30-jaars rente

3,41% - Centraal Beheer Groen... - NHG


3,74% - Centraal Beheer Groen... - 80%


Hypotheek:

Bruto maandlasten: € 0 p/m

Netto maandlasten: € 0 p/m

Hoe berekenen we dit?

Het rentepercentage is gebaseerd op de laagste 10 jaars vaste rente voor één hypotheekdeel. De vermelde rente (2.98% met NHG) is gecontroleerd op 05-01-2026. Deze berekening is gebaseerd op een annuïteitenhypotheek die volledig wordt afgelost, waarbij de maandlasten gedurende de gehele looptijd gelijk blijven. De werkelijke rente en netto maandlasten kunnen variëren, afhankelijk van uw persoonlijke situatie en de hypotheekverstrekker. Raadpleeg een financieel adviseur voor een nauwkeurige berekening en advies. Aan deze berekening kunnen geen rechten worden ontleend; het dient enkel als indicatie.

Documentatie

Zonnegrenzen bekijken

Op de kaart

Inwoners in Zoetermeer

Cijfers voor postcodegebied 2722

Totaal aantal inwoners
4950 inwoners
Mannen
48%
Vrouwen
52%

Inwoners in Zoetermeer

Cijfers voor postcodegebied 2722

tot 15 jaar
16%
15 tot 25 jaar
11%
25 tot 35 jaar
30%
45 tot 65 jaar
24%
65 en ouder
19%

Huishoudens in Zoetermeer

Cijfers voor postcodegebied 2722

Eenpersoons zonder kinderen
50%
Meerpersoons zonder kinderen
20%
Huishoudens zonder kinderen
70%

Huishoudens in Zoetermeer

Cijfers voor postcodegebied 2722

Huishoudens met één kind
14%
Huishoudens met meerdere kinderen
16%
Huishoudens met kinderen
30%

Woningen in Zoetermeer

Cijfers voor postcodegebied 2722

Woningen voor 1945
1%
Woningen tussen 1945 en 1965
1%
Woningen tussen 1965 en 1975
68%
Woningen tussen 1975 en 1985
8%
Woningen tussen 1985 en 1995
10%

Woningen in Zoetermeer

Cijfers voor postcodegebied 2722

Woningen tussen 1995 en 2005
1%
Woningen tussen 2005 en 2015
8%
Woningen na 2015
6%
Huurwoningen
70%
Koopwoningen
30%

Overige in Zoetermeer

Cijfers voor postcodegebied 2722

Gemiddelde WOZ waarde
€ 175.000,-
Personen onder de 65 met uitkering
15%

Overige in Zoetermeer

Cijfers voor postcodegebied 2722

Adressen per km²
2882
Stedelijkheid (schaal 1 op 5)
100%
Postcode kaart 2722 Gemeente kaart zoetermeer

Indien u vragen heeft of u wilt een bezichtiging inplannen, dan kunt u gebruik maken van het formulier hiernaast. Er zal daarna op korte termijn contact met u worden opgenomen.

Willem Dreeslaan 214

2729NJ, Zoetermeer

079 - 203 3059 info@kleurrijkmakelaars.nl www.kleurrijkmakelaars.nl

Kleurrijk NVM Makelaars & Taxateurs Zoetermeer

Bij Kleurrijk NVM Makelaars & Taxateurs staan wij voor u klaar. Bent u op zoek naar een makelaar die altijd bereikbaar is, snel handelt en u begeleidt bij de complexe aspecten van de aan- of verkoop van uw woning? Dan bent u bij ons aan het juiste adres. Met jarenlange ervaring in Zoetermeer, Lansingerland en Rotterdam bieden wij u deskundig advies. Wij verwelkomen u graag op ons hoofdkantoor in Zoetermeer aan de Willem Dreeslaan 214.

Kleurrijk NVM Makelaars & Taxateurs is de juiste keuze als u:

• Op zoek bent naar een specialist in aan- en verkoopbegeleiding;

• Waarde hecht aan laagdrempelige communicatie;

• Een voorkeur heeft voor duidelijke en directe communicatie;

• Belangrijk vindt dat uw makelaar goed naar u luistert;

• Het prettig vindt als uw makelaar flexibel beschikbaar is;

• Altijd direct contact wilt met uw makelaar;

• Een onafhankelijke taxatie wenst van uw woning door een van onze registertaxateurs (NWWI/NRVT).

Passie voor het vak

Vinod Lachmon, Register NVM-makelaar, heeft jarenlange ervaring opgedaan bij diverse grote makelaarskantoren in regio’s zoals Zoetermeer, Rotterdam, Lansingerland en Gouda. Hij beschikt over uitgebreide kennis en een groot netwerk. Vinod onderscheidt zich door zijn betrokkenheid, juridische precisie en de bereidheid om ook na de aan- of verkoop voor zijn klanten klaar te staan.

Kleurrijk NVM Makelaars & Taxateurs Zoetermeer
Reviews Kleurrijk NVM makelaars & taxateurs

Douzapad 27, Zoetermeer

Vraagprijs: € 275.000 k.k. - Verkocht

Helaas, deze woning is verkocht!

Net te laat, deze woning is al verkocht. Laat een zoekopdracht bij ons achter zodat wij u direct kunnen helpen wanneer er nieuw aanbod beschikbaar komt.